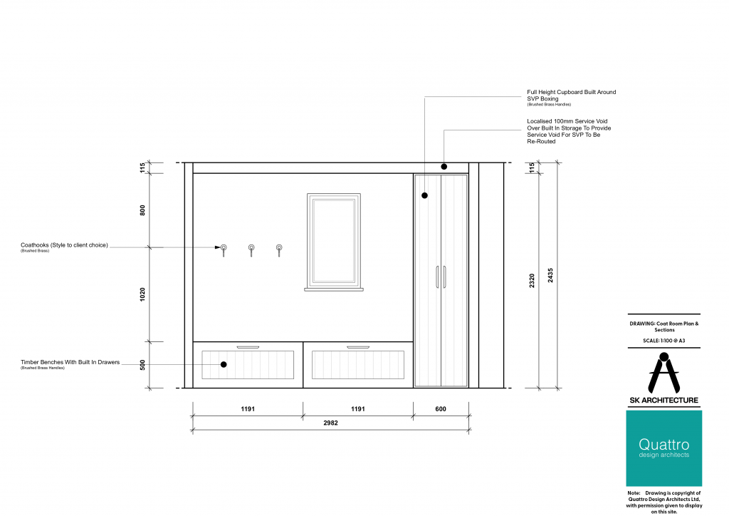
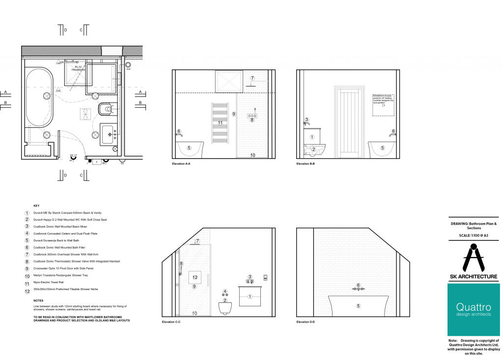
During the summer of 2024, I completed a 2 month placement with Quattro Design Architects, I worked on a range of projects in the housing team which gave me the opportunity to develop existing skills and learn new ones. Below are some of the drawings from projects I worked on:






















